志田下ポイント徒歩圏内
| 所在地 | 一宮町東浪見 |
|---|---|
| 価格 | - |
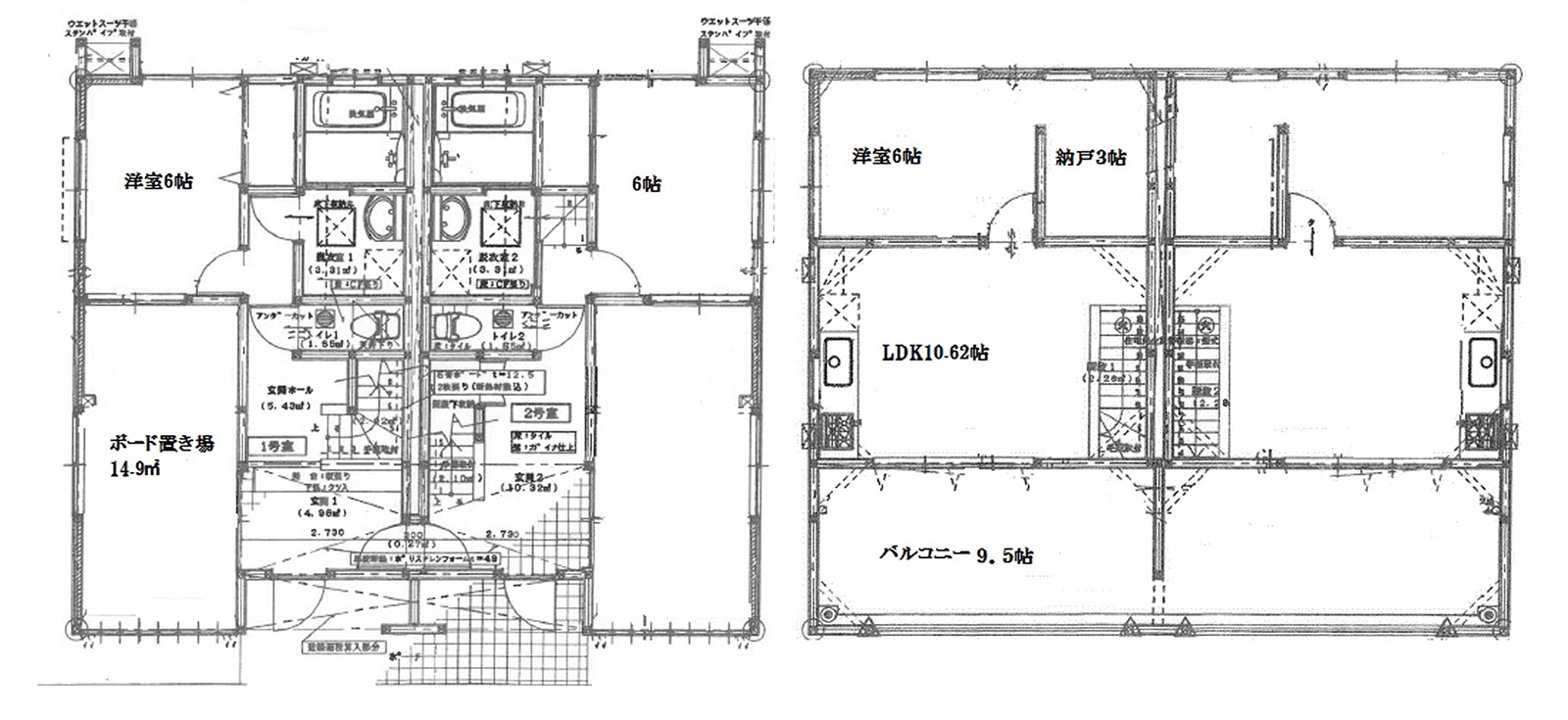
| 間取り | 2LDK×2戸(メゾネット) |
| 建物面積 | 164.23㎡ |
| 土地面積 | 434.65㎡(約131坪(公簿) |
| 築年数 | 平成28年6月 |
| 構造 | 木造合金メッキ鋼板ぶき2階建て |
| 都市計画 | 非線引き区域 |
| 用途地域 | 無指定地域 |
| 法令上の制限 | 特定用途制限地域 |
| 建ぺい率/容積率 | 60/200 |
| 設備 | ●水道:公営水道●ガス:プロパンガス●排水:浄化槽●電気:東京電力 |
| 取引形態 | 仲介 |
| 最寄駅 | 東浪見駅まで約2.5 ㎞ 上総一ノ宮駅まで約5.5㎞ |
| 備考 |
写真/図面と現況が異なる場合は現況優先と致します