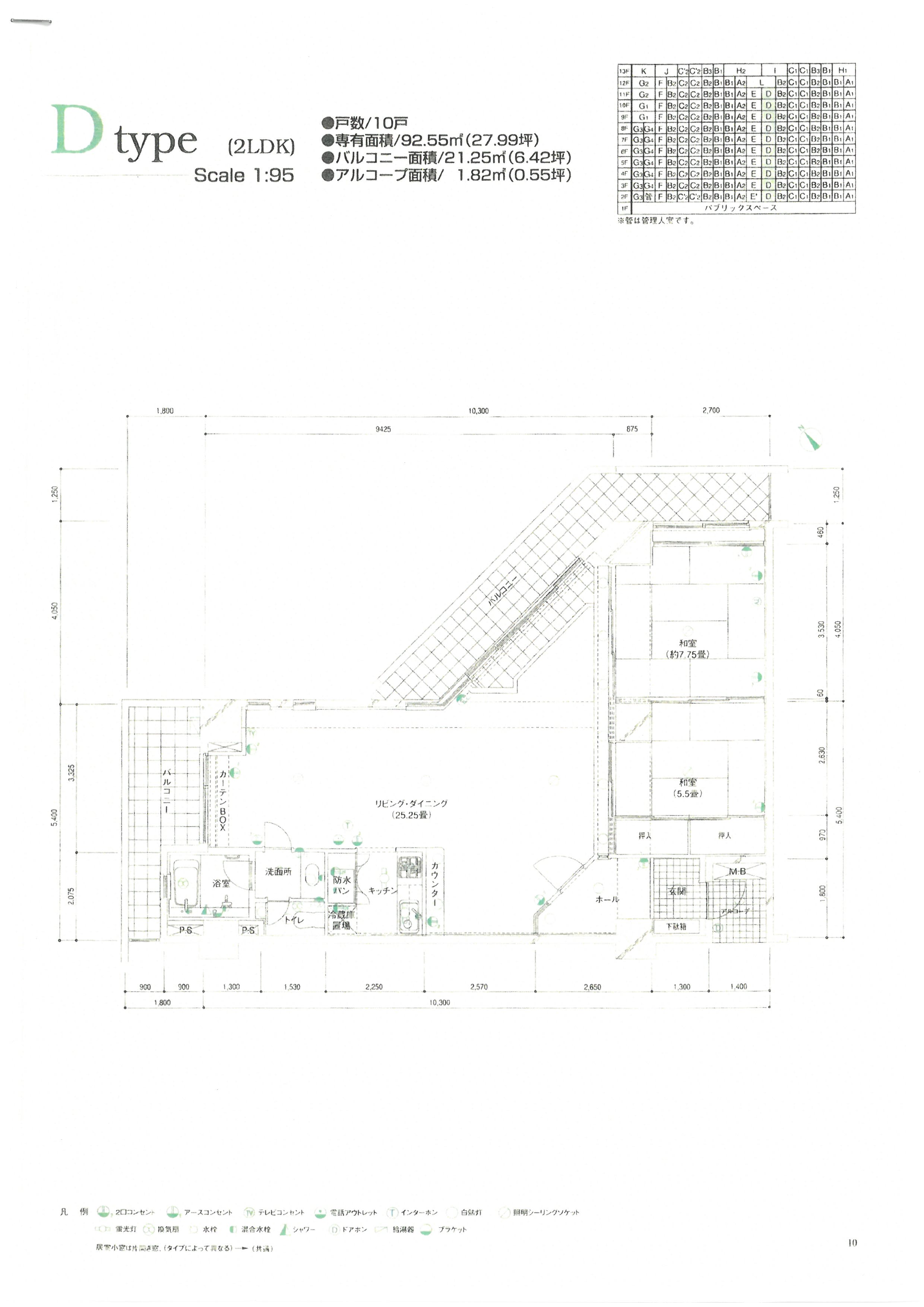
いすみ市の海辺に建つピンクマンション、シーサイド・リゾート南房総貴賓館。216戸のうち同じタイプの部屋は10戸のみ。
余裕の広さ87.77㎡の2LDK。
21.25㎡の広いバルコニーで海を見ながらバーベキューも楽しめます。
管理人常駐でセキュリティーも安心です。
無料で使えるプール、トレーニングジムもあります。
| 所在地 | 千葉県いすみ市和泉185-12 |
|---|---|
| 価格 | 1000万円 |
| 占有面積 | 87.77㎡ |
| 階建 | 13階建/5階部分 |
| 間取 | 2LDK |
| 築年数 | H2年3月 |
| 構造 | SRC |
| 設備 | 収納スペース・都市ガス・エアコン |
| 土地権利 | 所有権 |
| 管理の形態 | 全部委託/常駐 | 引渡し時期 | 相談 |
| 取引形態 | 媒介 |
写真/図面と現況が異なる場合は現況優先と致します