オーナーチェンジ レベニュー73 SUNRISE

現在、賃貸中
オーナーチェンジ物件

築9年メゾネットタイプ。サンライズポイントまで徒歩5分の好立地。

広い2階テラスには、ガス口がありますので、ガスコンロでBBQも楽しめます。

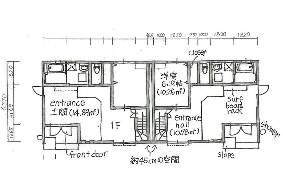
1階土間スペースも広くボードロッカーやバイクガレージとしても活用できます。

駐車場は、1世帯当たり3台。

    
所在地 長生郡一宮町東浪見7408-2
価格 8,192万円
間取り 2LDK×2戸×2棟
建物面積 1F:96.88㎡、2F:78.16㎡、合計:175.04㎡ ×2棟
土地面積 723.55㎡(公簿)
築年数 平成28年11月
構造 木造合金メッキ鋼板葺き2階建て
都市計画 非線引き区域
用途地域 無指定地域
法令上の制限 特定用途制限地域、県立九十九里自然公園
建ぺい率/容積率 60/200
設備 ●水道:公営水道●ガス:プロパンガス●排水:浄化槽●電気:東京電力●バス・トイレ別●エアコン2台●駐車場1戸あたり3台
取引形態 媒介
最寄駅 東浪見駅まで徒歩約23分
家賃 賃料:125,000円、共益費:3,000円、駐車場代:賃料に含む
利回り 7.3%

写真/図面と現況が異なる場合は現況優先と致します

Back to Top